LE STUDIO
Le Studio — un espace polyvalent pour les créateurs d’aujourd’hui
Le Studio est un espace modulable pensé pour accueillir toutes les formes de création. Que ce soit pour un shooting, un tournage, une répétition, un podcast, un atelier ou même un petit événement, le Studio s’adapte à vos projets. Conçu pour offrir flexibilité et confort, il permet à chaque créateur de donner vie à ses idées dans un cadre professionnel, polyvalent et entièrement personnalisable.
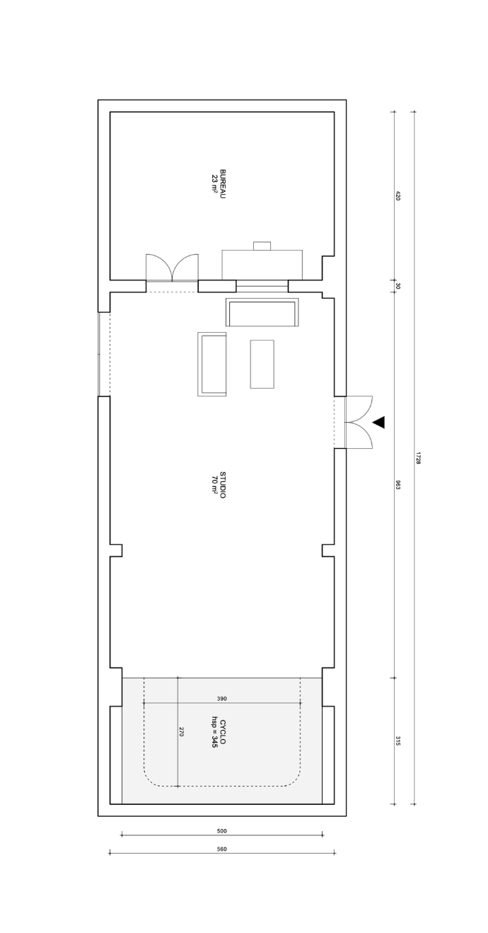
📐 Dimensions du Studio
Superficie
Studio : 80 m²
Bureau : 23 m²
Cyclorama
Largeur : 390 cm
Profondeur : 270 cm
Hauteur sous plafond : 2,45 m
Largeurs du bâtiment
Largeur intérieure : 500 cm
Largeur extérieure : 560 cm
Longueurs visibles sur le haut du plan
(le mur long en haut est divisé en 3 sections)
420 cm
340 cm
316 cm
➡️ Longueur totale : 1 728 cm (17,28 m)

⚙️ Équipement compris dans votre réservation
La location du studio inclut l’accès au matériel suivant :
Éclairage continu
- Amaran P60C (x4)
- RGB – contrôlables via Sidus Link.
Fixés au gril technique du cyclorama. - Dédolight DHL2 100W Tungsten (x3)
- Fixés au gril technique du cyclorama.
Son
Enceinte HK Polar 8 – Bluetooth
Flash & photographie
Flashs Bowens Gemini 500R (x2)
Parapluies
Bol réflecteur
Accessoire lumière
Réflecteur lastolite
C-stand
Light stand
Sand bag
🚻 Confort & espace
Accès aux toilettes
Accès à une kitchenette (eau, plan de travail, café, micro-onde)
Wifi
Table
Chaise
Canapés
Découvrez nos tarifs
Trouvez la formule qui correspond le mieux à vos besoins et à votre projet.
Nos Tarifs